さいたま市北区奈良町 2期 新築一戸建て グランドパティオ 

4,180万円

埼玉県さいたま市北区奈良町

高崎線「宮原」駅徒歩8分

埼玉新都市交通ニューシャトル「東宮原」駅徒歩21分

埼玉新都市交通ニューシャトル「加茂宮」駅徒歩23分

価格
4,180万円
間取り/建物面積
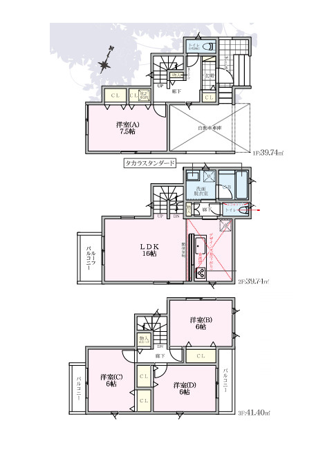
4LDK/120.88㎡
所在地
埼玉県さいたま市北区奈良町
築年
2026年3月(新築)
駐車
有(1台)
交通

高崎線宮原」駅 徒歩8分

埼玉新都市交通ニューシャトル東宮原」駅 徒歩21分

埼玉新都市交通ニューシャトル加茂宮」駅 徒歩23分

さいたま市北区奈良町 2期 新築一戸建て グランドパティオ の基本情報

物件名
さいたま市北区奈良町 2期 新築一戸建て グランドパティオ 
価格
4,180万円
建物面積
120.88㎡
土地面積
25.92坪(85.71㎡)
築年月
2026年3月(新築)
総戸数
1戸
所在地
埼玉県さいたま市北区奈良町
交通

高崎線宮原」駅 徒歩8分

埼玉新都市交通ニューシャトル東宮原」駅 徒歩21分

埼玉新都市交通ニューシャトル加茂宮」駅 徒歩23分

さいたま市北区奈良町 2期 新築一戸建て グランドパティオ の詳細情報

設備条件
  • 閑静な住宅地
  • 駐輪場
  • バイク置場あり
  • 宅配ボックス
設備(その他)
    -
駐車場/月額
有(1台)/0円
土地権利
所有権
国土法届出
不要
用途地域
準住居
取引態様
仲介
引渡し
即時

さいたま市北区奈良町 2期 新築一戸建て グランドパティオ で募集中の物件

  1. 36.56坪 (120.88㎡)

    4,180万円(114.33万円/坪)

周辺施設

  • フードガーデン 宮原西口店の画像

    スーパー

    フードガーデン 宮原西口店

    601m(8分)

  • マクドナルド 大宮バイパス宮原店の画像

    ファーストフード

    マクドナルド 大宮バイパス宮原店

    925m(12分)

  • イスタ!日進の画像

    ショッピングセンター

    イスタ!日進

    1100m(14分)

  • さいたま市立宮原中学校の画像

    中学校

    さいたま市立宮原中学校

    1200m(15分)

  • 銀鈴幼稚園の画像

    幼稚園

    銀鈴幼稚園

    1551m(20分)

  • 大宮別所小学校の画像

    小学校

    大宮別所小学校

    1802m(23分)

  • 北区役所の画像

    市役所・区役所

    北区役所

    2496m(32分)

  • バースデイ 宮原店の画像

    ショッピングセンター

    バースデイ 宮原店

    2499m(32分)

  • 安楽亭大宮本郷店の画像

    ファミリーレストラン

    安楽亭大宮本郷店

    2579m(33分)

近隣の物件

  1. さいたま市北区日進町1丁目

    3SLDK (94.62㎡)

    4,180万円

  2. さいたま市北区宮原町2丁目

    3SLDK (102.26㎡)

    5,990万円

  3. さいたま市北区盆栽町

    3LDK (115.82㎡)

    8,680万円

  4. さいたま市北区吉野町1丁目

    3LDK (95.64㎡)

    4,399万円

よく見られている物件

  1. 鴻巣市箕田

    5DK (57.48㎡)

    430万円

  2. 桶川市北2丁目

    4LDK+S(納戸) (124.84㎡)

    1,980万円

  3. 北本市本町4丁目

    4LDK (88.59㎡)

    1,980万円

  4. 上尾市大字畔吉

    4LDK (125.22㎡)

    1,480万円

さいたま市北区奈良町 2期 新築一戸建て グランドパティオ 

お気軽にお問い合わせください

LINEからお問い合わせ 無料お問い合わせ

株式会社こもれびハウス

0120-788-767

9:00~20:00

(休:水曜日)