さいたま市北区奈良町 2期 新築一戸建て グランドパティオ
4,180万円
高崎線「宮原」駅徒歩8分
埼玉新都市交通ニューシャトル「東宮原」駅徒歩21分
埼玉新都市交通ニューシャトル「加茂宮」駅徒歩23分
【外観】外観です
- 建物面積
- 120.88㎡
- 築年月
- 2026年3月(新築)
-
室内洗濯機置場
-
TVモニタ付きインターホン
-
カウンターキッチン
-
独立洗面台
-
浴室乾燥機

外観
リビング
キッチン
風呂
寝室- 販売戸数
- 1戸
- 総戸数
- 1戸
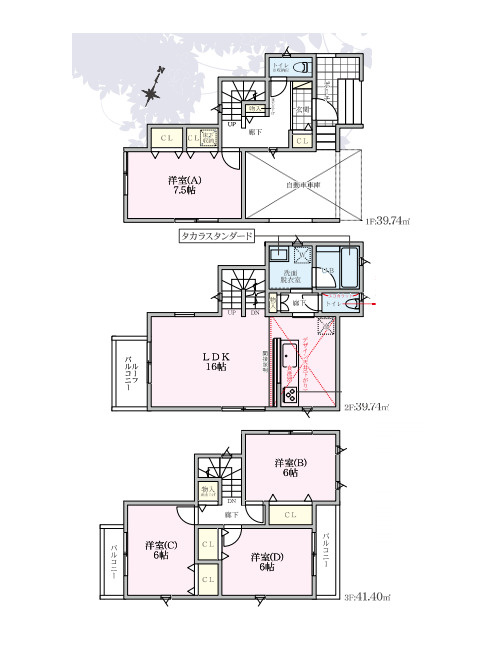
- 間取り / 詳細
- 4LDK
LDK 16.0帖 1室/洋室 7.5帖 1室/洋室 6.0帖 3室 - 向き
- 南西
- 建物面積(坪数)
- 120.88㎡(36.56坪)
- 土地面積(坪数)
- 85.71㎡(25.92坪)
- 建ぺい率 /
容積率 - 70%/200%
- 築年月
- 2026年3月(新築)
- 駐車場 / 月額
- 有(1台) / 0円
- 土地権利
- 所有権
- 土地
(敷金 / 保証金) - - / -
- 建物構造
- 木造 / 2階建
- 傾斜地部分面積
- -
- 路地状敷地
- -
- 私道負担面積
- -
- セットバック
- 無
- 高圧線下面積
- -
- 施工会社
- -
- 用途地域
- 準住居
- 地目 / 地勢
- 宅地 / -
- 接道状況
- 三方(北東 公道 4.0m)(北西 公道 28.7m)(南東 公道 1.5m)
- 国土法届出要否
- 不要
- 都市計画
- 市街化区域
- 総区画数 /
販売区画数 - 1区画/1区画
- 現況
- 完成済み
- その他
法令上の制限 - 景観法/高さ最高限度有/日影制限有/法22条区域、高度地区20m、宮原駅西口周辺地区地区計画
- 取引態様
- 仲介
- 引渡し
- 即時
- 取引条件の
有効期限 - 2026年04月27日
- 設備条件
-
- 陽当り良好 / 閑静な住宅地 / 眺望良好 / カードキー / 室内洗濯機置場 / フローリング / バルコニー / ルーフバルコニー / 都市ガス / 公営水道 / 公共下水 / 24時間換気システム / 電気有 / 2面バルコニー / ビルトガレージ / 照明器具付き / 駐輪場 / バイク置場あり / 食器洗い乾燥機 / システムキッチン / オープンキッチン / カウンターキッチン / 追焚機能浴室 / 浴室乾燥機 / 温水洗浄便座 / トイレ2ヶ所 / 浴室1坪以上 / 独立洗面台 / 収納豊富 / TVモニタ付インターホン / 宅配ボックス / 複層ガラス / ディンプルキー
- 設備(その他)
-
-
-
- 物件番号
- 99744240
- 管理コード
- -
- 建築確認番号
- 第SJK-KX255114720号
- 情報更新日
- 2026年04月13日
- 次回更新予定日
- 2026年04月27日
- 取扱会社
-
- 株式会社こもれびハウス
- 埼玉県上尾市泉台2丁目6番9号 泉台ハイツ 1B
- TEL:0120-788-767
- 埼玉県知事 (1) 第25102号
- 埼玉県宅地建物取引業協会
- 備考
- 【Komorebi house】期間限定キャンペーン!
~ご成約で【選べる家電プレゼント♪】~
※対象物件はスタッフまで!人気のものから無くなりますのでお早めに!
【突然のお電話・お問い合わせ、大歓迎!】
今すぐ【0120-788-767】へ!
さらに、、、
【ご来店でAmazonギフト券3,000円分プレゼント!】
「ちょっと相談だけ」でもOKです!
==============================
【ご内覧について】
~写真だけじゃ分からない“空気感”を現地で体感してください!~
・当日のご内覧大歓迎!(土日祝ももちろんOK)
・資料だけほしい方もお気軽に♪
・ネットには載せられない【未公開物件】や【新規公開前物件】もまとめてご紹介できます!
==============================
【資金計画・住宅ローンのご相談】
「いくら借りられる?」
「初期費用0円って本当にできる?」
「銀行、どこに出すのが一番通りやすい?」
全部お任せください!
最適な資金シミュレーションから、事前審査~本申込までフルサポート。
多数の銀行と取引があるため、お客様にベストなプランをご提案します!
==============================
【Komorebi houseとは?】
「不動産ってちょっと怖い…相談しづらい」
そんなイメージをゼロにするために立ち上げた会社です。
・初めての家探し
・ネットの情報だけでは判断しづらい…
・とりあえず話を聞きたい
そんな方、大歓迎です!
==============================
【プロフェッショナル集団が徹底サポート】
・宅地建物取引士
・大手ハウスメーカー出身者
・リノベーションアドバイザー
・住宅ローンアドバイザー
・ベテラン不動産スタッフ
頼れる専門スタッフがチームでご対応します!
※強引な営業は一切いたしません。ご安心ください。
==============================
【お問い合わせ・ご相談、お気軽にどうぞ!】
「ちょっと聞きたい」
「とりあえず見てみたい」
そんな軽い気持ちでOKです。
皆さまからのご連絡を心よりお待ちしております! -
スーパー
フードガーデン 宮原西口店
601m(8分)
-
ファーストフード
マクドナルド 大宮バイパス宮原店
925m(12分)
-
ショッピングセンター
イスタ!日進
1100m(14分)
-
中学校
さいたま市立宮原中学校
1200m(15分)
-
幼稚園
銀鈴幼稚園
1551m(20分)
-
小学校
大宮別所小学校
1802m(23分)
-
市役所・区役所
北区役所
2496m(32分)
-
ショッピングセンター
バースデイ 宮原店
2499m(32分)
-
ファミリーレストラン
安楽亭大宮本郷店
2579m(33分)
- 月々の支払額
- 円
- 購入希望物件価格
-
万円
- 頭金
-
万円
- 金利
-
%
- 返済額(ボーナス1回分)
-
万円
- 返済期間
-
年
物件の特徴
セールスポイント
☆「宮原」駅徒歩8分☆
♪プライバシーが守られる2階リビングです♪
★内覧即日対応★
急なお問合せも歓迎・お子様連れでもご遠慮なくご相談下さい♪
★ローン審査に柔軟対応★
どの会社よりも承認率に自信がございます!
借換えやおまとめローンもご相談いただけます!
★不動産の専門家がプランニング★
【宅地建物取引士】【ローンアドバイザー】が全力サポート!
ポイント
玄関収納 形状:1階洋室付き 温水洗浄便座 全室2面採光 ワイドバルコニー ルーフバルコニー 2階リビング 食洗器 カードキー JR高崎線 宮原駅 別所小学校 宮原中学校
担当者のコメント
パノラマ画像
基本情報
設備条件
その他
周辺施設
支払いシミュレーション
※実際の金額と異なる場合があります。
※ボーナスは自動で年2回分で計算されます。
近隣の物件
よく見られている物件
さいたま市北区奈良町 2期 新築一戸建て グランドパティオ
4,180万円
-
4LDK(120.88㎡)
中山 大輔
♪プライバシーが守られる2階リビングです♪
〇全居室6帖以上なので広々とした空間を感じることができます〇
【~癒しと温かみのある 心地よい住まい探し をあなたに~】
埼玉エリアならお任せください♪
地元に強いからこそ、良い物件情報・価格交渉・アフターサービスまで徹底サポートします!
━━━━━━━━━━━━━━━━━━━
【Komorebi houseの圧倒的な強み】
━━━━━━━━━━━━━━━━━━━
【戸建てご購入の方へ】
・インスペクション(建物状況調査)と同等レベルの検査が無料!
・点検後の補修依頼もその場でまとめて可能!
→ 購入後もずっと安心できるアフターフォローが好評です!
【住宅ローンの強さも自信あり!】
・提携銀行多数!お客様に最適な銀行を幅広くご紹介
・他社で否決・減額だった方の“承認実績”多数!
→ 難しいローンでも諦める前に、ぜひ一度ご相談ください!
【地域密着エリア特化のメリット】
・埼玉エリアに特化しているから地元情報と人脈が豊富!
・取引先ハウスメーカー多数 → 価格交渉にも強い!
・購入後のアフターフォローも徹底対応!
→地元に強い会社だからできる、安心のサービスです!
━━━━━━━━━━━━━━━━━━━
【サポート体制も万全です!】
━━━━━━━━━━━━━━━━━━━
弊社には以下の専門家が在籍しています。
・宅地建物取引士
・大手ハウスメーカー経験者
・マンションリノベーションアドバイザー
・住宅ローンアドバイザー
・不動産歴の長いベテランスタッフ
不動産購入の不安や疑問は、すべて私たちにお任せください!