北本市東間3丁目 中古戸建

1,500万円

埼玉県北本市東間3丁目

高崎線「北本」駅徒歩14分

高崎線「鴻巣」駅徒歩41分

高崎線「桶川」駅徒歩73分

価格
1,500万円
間取り/建物面積
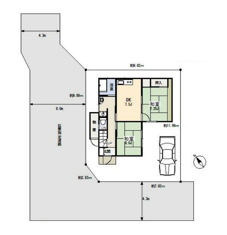
5DK/63.75㎡
所在地
埼玉県北本市東間3丁目
築年
1976年4月(築49年)
駐車
有(1台)
交通

高崎線北本」駅 徒歩14分

高崎線鴻巣」駅 徒歩41分

高崎線桶川」駅 徒歩73分

北本市東間3丁目 中古戸建の基本情報

物件名
北本市東間3丁目 中古戸建
価格
1,500万円
建物面積
63.75㎡
土地面積
34.86坪(115.25㎡)
築年月
1976年4月(築49年)
総戸数
-
所在地
埼玉県北本市東間3丁目
交通

高崎線北本」駅 徒歩14分

高崎線鴻巣」駅 徒歩41分

高崎線桶川」駅 徒歩73分

北本市東間3丁目 中古戸建の詳細情報

設備条件
  • 駐輪場
  • バイク置場あり
設備(その他)
    -
駐車場/月額
有(1台)/0円
土地権利
所有権
国土法届出
不要
用途地域
第一種住居
取引態様
仲介
引渡し
相談

北本市東間3丁目 中古戸建で募集中の物件

  1. 19.28坪 (63.75㎡)

    1,500万円(77.8万円/坪)

周辺施設

  • 業務スーパー 北本店の画像

    スーパー

    業務スーパー 北本店

    200m(3分)

  • ローソン 北本東間四丁目店の画像

    コンビニエンスストア

    ローソン 北本東間四丁目店

    252m(4分)

  • がってん寿司北本店の画像

    ファミリーレストラン

    がってん寿司北本店

    387m(5分)

  • 石黒動物病院の画像

    動物病院

    石黒動物病院

    418m(6分)

  • あさと医院の画像

    小児科

    あさと医院

    453m(6分)

  • ガスト 北本店(から好し取扱店)の画像

    ファミリーレストラン

    ガスト 北本店(から好し取扱店)

    518m(7分)

  • 北本東間郵便局の画像

    郵便局

    北本東間郵便局

    732m(10分)

  • ヤオコー 北本中央店(埼玉県)の画像

    スーパー

    ヤオコー 北本中央店(埼玉県)

    800m(10分)

  • ドラッグストア セキ 東間店の画像

    ドラッグストア

    ドラッグストア セキ 東間店

    840m(11分)

  • 埼玉りそな銀行 北本支店の画像

    銀行

    埼玉りそな銀行 北本支店

    925m(12分)

  • スギドラッグ 北本西高尾店の画像

    ドラッグストア

    スギドラッグ 北本西高尾店

    944m(12分)

  • ふじ幼稚園の画像

    幼稚園

    ふじ幼稚園

    1089m(14分)

  • 北本市立北小学校の画像

    小学校

    北本市立北小学校

    1200m(15分)

  • 北本第一クリニックの画像

    総合病院

    北本第一クリニック

    1337m(17分)

  • 吉田医院の画像

    産婦人科

    吉田医院

    1393m(18分)

  • 北本市立宮内中学校の画像

    中学校

    北本市立宮内中学校

    1500m(19分)

  • 北本市役所の画像

    市役所・区役所

    北本市役所

    1923m(25分)

近隣の物件

  1. 北本市宮内2丁目

    4LDK (95.63㎡)

    2,790万円

  2. 北本市本宿7丁目

    3LDK (79.70㎡)

    2,990万円

  3. 北本市大字下石戸下

    4LDK (95.74㎡)

    3,499万円

  4. 北本市大字下石戸下

    3LDK (72.86㎡)

    1,499万円

よく見られている物件

  1. 鴻巣市箕田

    5DK (57.48㎡)

    430万円

  2. 桶川市北2丁目

    4LDK+S(納戸) (124.84㎡)

    1,980万円

  3. 北本市本町4丁目

    4LDK (88.59㎡)

    1,980万円

  4. 上尾市大字畔吉

    4LDK (125.22㎡)

    1,480万円

北本市東間3丁目 中古戸建

お気軽にお問い合わせください

LINEからお問い合わせ 無料お問い合わせ

株式会社こもれびハウス

0120-788-767

9:00~20:00

(休:水曜日)