さいたま市西区宝来第1 新築一戸建て クレイドルガーデン 02

11月29日 値下げ

3,280万円

埼玉県さいたま市西区大字宝来

川越線「指扇」駅徒歩12分

川越線「西大宮」駅徒歩27分

川越線「南古谷」駅徒歩68分

価格
3,280万円
間取り
4LDK
土地面積
167.88㎡
所在地
埼玉県さいたま市西区大字宝来
交通

川越線指扇」駅 徒歩12分

川越線西大宮」駅 徒歩27分

川越線南古谷」駅 徒歩68分

建物面積
96.38㎡
築年月
2025年8月(新築)

物件の特徴

  • 室内洗濯機置場

  • TVモニタ付きインターホン

  • カウンターキッチン

  • 独立洗面台

  • 浴室乾燥機

セールスポイント

〇大型収納有の新築一戸建て〇
主寝室はバルコニーに面した明るい空間です。

●いますぐ内覧がしたい!
●物件や土地の詳しい資料がほしい!
●住宅ローンを組めるか不安・相談したい!

~宅地建物取引士・大手ハウスメーカー経験者にお任せください~

なんでもご相談大歓迎です!
お客様は本気でお家を探しています!私たちも本気でお客様に応えます!

ポイント

さいたま市西区宝来 新築一戸建て 4LDK 南東向き 対面キッチン 1階和室 主寝室9帖 パントリー 防犯カメラ JR埼京線 指扇駅 指扇小学校 指扇中学校

担当者のコメント

中山 大輔

〇大型収納有の新築一戸建て〇
主寝室はバルコニーに面した明るい空間です。

〇公園・スーパー徒歩6分圏内で便利な住宅です〇


【地域密着エリア特化の不動産】
~癒しと温かみのある住まい探しを~

弊社は、埼玉県の新築戸建て、中古戸建て、マンション、土地などの取り扱いに特化しております!


【Komorebi houseの強み】

☆新築・中古戸建て購入の方へ☆
●毎年、提携業者(第三者機関)にて定期点検が永年無料!
●建物状況調査(インスペクション)と同等検査が無料で行えます!
●第三者の視点で既存住宅に劣化や不具合が生じていないか検査を行います!
●定期点検後の補修もその場でまとめて依頼可能!


☆レスポンスを大切にします☆
●内覧の即日対応!スタッフが駆け付けます!
●諸費用のご相談!ローン計画書もすぐお送りいたします!
●その他ご不明点ご質問に即日回答させていただきます!


☆住宅ローンに関して☆
●提携銀行多数、たくさんの銀行さんをご紹介できます!
●他社で否決・減額になってしまった方も承認実績あり!
●シングルマザーの方、外国籍の方、個信に不安のある方なども柔軟にご対応させていただきます!


☆地域密着エリア特化の不動産屋さん☆
●埼玉エリアに特化しておりますので、取引先ハウスメーカー様も多数あり!
●価格交渉も通りやすいので、是非お任せください!
●購入された後もアフターフォローもしっかりとさせていただきます!


どんなことでもご相談ください!

弊社では、【宅地建物取引士】・【大手ハウスメーカー経験者】・【マンションリノベーションアドバイザー】・【住宅ローンアドバイザー】・【不動産歴の長い経験豊富なスタッフ】がサポートさせていただきます!

基本情報

販売戸数
1戸
総戸数
3戸
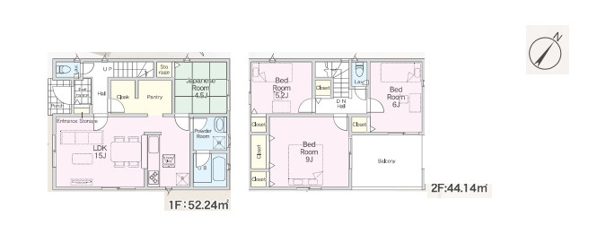
間取り / 詳細
4LDK
LDK 15.0帖 1室/和室 4.5帖 1室/洋室 9.0帖 1室/洋室 6.0帖 1室/洋室 5.2帖 1室
向き
南西
建物面積(坪数)
96.38㎡(29.15坪)
土地面積(坪数)
167.88㎡(50.78坪)
建ぺい率 /
容積率
60%/200%
築年月
2025年8月(新築)
駐車場 /
月額料金
有(1台) 0円
土地権利
所有権
土地
(敷金 / 保証金)
- / -
建物構造
木造 / 2階建
傾斜地部分面積
-
路地状敷地
-
私道負担面積
-
セットバック
高圧線下面積
-
施工会社
-
用途地域
無指定
地目 / 地勢
宅地 / -
接道状況
一方(北西 公道 5.1m)
国土法届出要否
不要
都市計画
市街化区域
総区画数 /
販売区画数
3区画/1区画
現況
完成済み
その他
法令上の制限
景観法
取引態様
仲介
引渡し
即時
取引条件の
有効期限
2025年12月23日

設備条件

設備条件
  • 陽当り良好 / 閑静な住宅地 / 建設住宅性能評価書付 / 眺望良好 / 室内洗濯機置場 / フローリング / バルコニー / プロパンガス / 公営水道 / 公共下水 / 24時間換気システム / 電気有 / 耐震構造 / ガスコンロ / コンロ2口以上 / システムキッチン / コンロ3口 / オープンキッチン / カウンターキッチン / 追焚機能浴室 / 浴室乾燥機 / 温水洗浄便座 / トイレ2ヶ所 / 浴室1坪以上 / 独立洗面台 / 床下収納 / 収納豊富 / TVモニタ付インターホン / 複層ガラス / ディンプルキー / 防犯カメラ / 24時間ゴミ出し可
設備(その他)
    -

その他

物件番号
93295563
管理コード
-
建築確認番号
第KBI-SGM24-10-5492号
情報更新日
2025年12月09日
次回更新予定日
2025年12月23日
取扱会社
  • 株式会社こもれびハウス
  • 埼玉県上尾市泉台2丁目6番9号 泉台ハイツ 1B
  • TEL:0120-788-767
  • 埼玉県知事 (1) 第25102号
  • 埼玉県宅地建物取引業協会
備考
【Komorebi house】ご成約家電プレゼントキャンペーン♪
~対象物件はスタッフまでご確認ください~

突然のご連絡大歓迎です!!
お問い合わせは「0120-788-767」まで!

お問合せからご来店いただいた方にAmazonギフト3,000円分プレゼント♪

ーーーーーーーーーーーーーーーーーーー

●ご内覧について●

☆実際に現地でご覧いただくことで、お写真では分からなかった設備や周辺環境も是非ご覧ください☆
・当日(土日祝日OK)でのご内覧希望も大歓迎です♪
・また、資料がほしいなどでもお気軽にお問合せくださいませ!
・ネット掲載不可の未公開物件、新規公開予定の物件も併せて資料をご用意致します。



●資金計画・住宅ローンのご相談●

・いくら借りられるのか? 支払いはいくらになるのか?
・初期費用0円で購入は可能なのか?
・多数の銀行で住宅ローンの審査をかけてほしい
・打合せをしながら、お客様一人一人に最適なご提案を致します!
・資金シミュレーションや最良な金融機関のご紹介、事前審査から本申し込みまでお任せください!



●【Komorebi house】について●

・初めてで、何から始めればいいか分からない。
・不動産会社はたくさんあるけど何となく入りずらい、相談しずらい・・
・そんな業界のイメージを変えたくて立ち上げました!

ーーーーーーーーーーーーーーーーーーー

弊社では、【宅地建物取引士】・【大手ハウスメーカー経験者】・【マンションリノベーションアドバイザー】・【住宅ローンアドバイザー】・【不動産歴の長い経験豊富なスタッフ】がサポートさせていただきます!
※強引な営業は致しません!

ご連絡ご相談お待ちしております♪

周辺施設

  • ライフ 指扇店の画像

    スーパー

    ライフ 指扇店

    800m(10分)

  • 指扇駅前郵便局の画像

    郵便局

    指扇駅前郵便局

    1092m(14分)

  • 指扇中学校の画像

    中学校

    指扇中学校

    1976m(25分)

  • さいたま市西区役所の画像

    市役所・区役所

    さいたま市西区役所

    2045m(26分)

  • サイゼリヤ マルエツ西大宮駅前店の画像

    ファミリーレストラン

    サイゼリヤ マルエツ西大宮駅前店

    2126m(27分)

  • AEON(イオン) 大宮西店の画像

    ショッピングセンター

    AEON(イオン) 大宮西店

    3294m(42分)

  • Ario(アリオ)上尾の画像

    ショッピングセンター

    Ario(アリオ)上尾

    5733m(72分)

支払いシミュレーション

月々の支払額
9.6
購入希望物件価格
万円
頭金
万円
金利
%
返済額(ボーナス1回分)
万円
返済期間

※ボーナスは自動で年2回分で計算されます。

さいたま市西区宝来第1 新築一戸建て クレイドルガーデン 02

さいたま市西区宝来第1 新築一戸建て クレイドルガーデン 02

3,280万円

-

4LDK(96.38㎡)

お気軽にお問い合わせください

LINEからお問い合わせ 無料お問い合わせ

株式会社こもれびハウス

0120-788-767

9:00~20:00

(休:水曜日)