レールシティ大宮1番館
10月20日 値下げ
4,480万円
京浜東北線「大宮」駅徒歩15分
埼玉新都市交通ニューシャトル「鉄道博物館(大成)」駅徒歩9分
東武野田線「北大宮」駅徒歩14分
【外観】外観もきれいです
- 価格
- 4,480万円
- 間取り
- 3LDK
- 向き
- 南
- 専有面積
- 70.26㎡
- 築年月
- 1997年3月(築28年)
-
バストイレ別
-
室内洗濯機置場
-
TVモニタ付きインターホン
-
独立洗面台
-
浴室乾燥機
-
オートロック
-
エレベーター

リビング
キッチン
バルコニー
風呂
寝室- 管理費
- 15,400円
- 修繕積立金
- 9,900円
- 修繕積立基金
- -
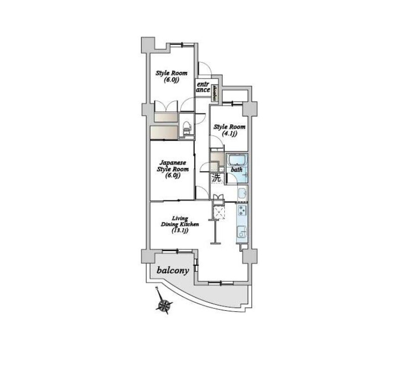
- 間取り / 詳細
- 3LDK
LDK 13.1帖 1室/和室 6.0帖 1室/洋室 6.0帖 1室/洋室 4.1帖 1室 - 向き
- 南
- 専有面積
- 70.26㎡
- バルコニー面積
- 11.07㎡
- その他面積
- -
-
- - 所在階 / 階建て
- 3階 / 10階建
- 建物構造
- 鉄骨鉄筋コンクリート
- 築年月
- 1997年3月(築28年)
- 種別
- 中古マンション
- 土地権利
- 所有権
- 土地
(敷金 / 保証金) - - / -
- 国土法届出要否
- 不要
- 接道状況
- -
- 用途地域
- 第一種住居
- 地勢
- -
- 都市計画
- -
- 現況
- 空家
- 引渡し
- 即時
- 取引態様
- 仲介
- 棟総戸数
- 148戸
- 管理形態
- 管理会社に全部委託
- 管理会社 /
管理組合有無 - - / -
- その他条件
- 町内会費月:300円
- 取引条件の
有効期限 - 2025年11月15日
- 設備条件
-
- 閑静な住宅地 / 室内洗濯機置場 / フローリング / バルコニー / 都市ガス / エレベーター / 電気有 / 食器洗い乾燥機 / システムキッチン / バス・トイレ別 / 追焚機能浴室 / 浴室乾燥機 / 温水洗浄便座 / 洗髪洗面化粧台 / 独立洗面台 / 収納豊富 / オートロック / TVモニタ付インターホン
- 設備(その他)
-
-
-
- 物件番号
- 98001396
- 管理コード
- -
- 建築確認番号
- -
- 情報更新日
- 2025年11月01日
- 次回更新予定日
- 2025年11月15日
- 備考
- 【Komorebi house】ご成約家電プレゼントキャンペーン♪
~対象物件はスタッフまでご確認ください~
突然のご連絡大歓迎です!!
お問い合わせは「0120-788-767」まで!
お問合せからご来店いただいた方にAmazonギフト3,000円分プレゼント♪
ーーーーーーーーーーーーーーーーーーー
●ご内覧について●
☆実際に現地でご覧いただくことで、お写真では分からなかった設備や周辺環境も是非ご覧ください☆
・当日(土日祝日OK)でのご内覧希望も大歓迎です♪
・また、資料がほしいなどでもお気軽にお問合せくださいませ!
・ネット掲載不可の未公開物件、新規公開予定の物件も併せて資料をご用意致します。
●資金計画・住宅ローンのご相談●
・いくら借りられるのか? 支払いはいくらになるのか?
・初期費用0円で購入は可能なのか?
・多数の銀行で住宅ローンの審査をかけてほしい
・打合せをしながら、お客様一人一人に最適なご提案を致します!
・資金シミュレーションや最良な金融機関のご紹介、事前審査から本申し込みまでお任せください!
●【Komorebi house】について●
・初めてで、何から始めればいいか分からない。
・不動産会社はたくさんあるけど何となく入りずらい、相談しずらい・・
・そんな業界のイメージを変えたくて立ち上げました!
ーーーーーーーーーーーーーーーーーーー
弊社では、【宅地建物取引士】・【大手ハウスメーカー経験者】・【マンションリノベーションアドバイザー】・【住宅ローンアドバイザー】・【不動産歴の長い経験豊富なスタッフ】がサポートさせていただきます!
※強引な営業は致しません!
ご連絡ご相談お待ちしております♪ -
スーパー
マルエツ 大成店
1152m(15分)
-
ドラッグストア
ドラッグセイムス 櫛引店
1281m(17分)
-
ドラッグストア
マツモトキヨシ ドラッグストア 大宮櫛引店
1349m(17分)
-
中学校
さいたま市立桜木中学校
1457m(19分)
-
小学校
桜木小学校
1633m(21分)
-
ファミリーレストラン
サイゼリヤ イオン大宮店
1729m(22分)
-
眼科
さいき眼科
2259m(29分)
-
市役所・区役所
さいたま市大宮区役所
2365m(30分)
-
ファミリーレストラン
ロイヤルホスト 大宮ステラタウン店
2468m(31分)
-
ショッピングセンター
ステラタウン
2582m(33分)
- 月々の支払額
- 9.6円
- 購入希望物件価格
-
万円
- 頭金
-
万円
- 金利
-
%
- 返済額(ボーナス1回分)
-
万円
- 返済期間
-
年
物件の特徴
セールスポイント
☆「大宮」駅から徒歩15分☆
♪6帖の和室付きです♪
★当社はどの会社よりも住宅ローン審査に柔軟対応し、承認率も高水準!
借換えやおまとめローンもご相談いただけます!
★地域密着で多数のハウスメーカーと取引があるため、価格交渉も安心してお任せください!
★埼玉県全域に特化し、【宅地建物取引士】【住宅ローンアドバイザー】がお住まい探しを全力サポートいたします!
ポイント
バルコニー 洗面所独立 間取り:横型リビング 温水洗浄便座 浴室乾燥機 和室 全居室収納 収納豊富 ワイドバルコニー 大宮区 JR京浜東北線 大宮駅 桜木小学校 桜木中学校
担当者のコメント
パノラマ画像
基本情報
設備条件
その他
周辺施設
支払いシミュレーション
※ボーナスは自動で年2回分で計算されます。
近隣の物件
レールシティ大宮1番館
4,480万円
15,400円
3LDK(70.26㎡)
伊藤 聡一郎
♪6帖の和室付きです♪
〇お子様連れのご家族に嬉しい!公園まで徒歩1分です〇
【地域密着エリア特化の不動産】
~癒しと温かみのある住まい探しを~
弊社は、埼玉県の新築戸建て、中古戸建て、マンション、土地などの取り扱いに特化しております!
【Komorebi houseの強み】
☆新築・中古戸建て購入の方へ☆
●毎年、提携業者(第三者機関)にて定期点検が永年無料!
●建物状況調査(インスペクション)と同等検査が無料で行えます!
●第三者の視点で既存住宅に劣化や不具合が生じていないか検査を行います!
●定期点検後の補修もその場でまとめて依頼可能!
☆レスポンスを大切にします☆
●内覧の即日対応!スタッフが駆け付けます!
●諸費用のご相談!ローン計画書もすぐお送りいたします!
●その他ご不明点ご質問に即日回答させていただきます!
☆住宅ローンに関して☆
●提携銀行多数、たくさんの銀行さんをご紹介できます!
●他社で否決・減額になってしまった方も承認実績あり!
●シングルマザーの方、外国籍の方、個信に不安のある方なども柔軟にご対応させていただきます!
☆地域密着エリア特化の不動産屋さん☆
●埼玉エリアに特化しておりますので、取引先ハウスメーカー様も多数あり!
●価格交渉も通りやすいので、是非お任せください!
●購入された後もアフターフォローもしっかりとさせていただきます!
どんなことでもご相談ください!
弊社では、【宅地建物取引士】・【大手ハウスメーカー経験者】・【マンションリノベーションアドバイザー】・【住宅ローンアドバイザー】・【不動産歴の長い経験豊富なスタッフ】がサポートさせていただきます!