コスモ上尾パークサイドアヴェニュー

1,780万円

埼玉県上尾市日の出1丁目

高崎線「上尾」駅徒歩21分

埼玉新都市交通ニューシャトル「原市」駅徒歩33分

埼玉新都市交通ニューシャトル「吉野原」駅徒歩32分

価格
1,780万円
間取り/面積
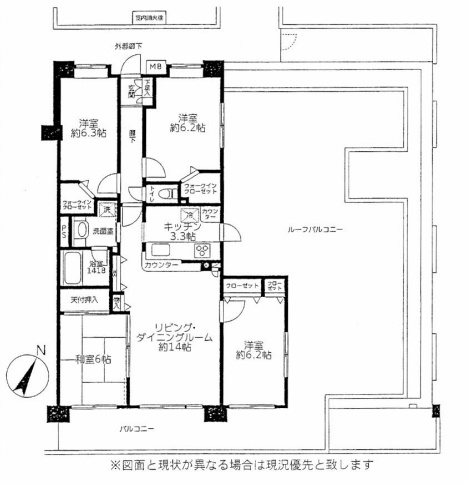
4LDK/92.24㎡
所在地
埼玉県上尾市日の出1丁目
築年
1999年6月(築26年)
駐車
空無
交通

高崎線上尾」駅 徒歩21分

埼玉新都市交通ニューシャトル原市」駅 徒歩33分

埼玉新都市交通ニューシャトル吉野原」駅 徒歩32分

コスモ上尾パークサイドアヴェニューの基本情報

物件名
コスモ上尾パークサイドアヴェニュー
価格
1,780万円
築年月
1999年6月(築26年)
総戸数
49戸
所在地
埼玉県上尾市日の出1丁目
交通

高崎線上尾」駅 徒歩21分

埼玉新都市交通ニューシャトル原市」駅 徒歩33分

埼玉新都市交通ニューシャトル吉野原」駅 徒歩32分

コスモ上尾パークサイドアヴェニューの詳細情報

設備条件
  • 閑静な住宅地
  • エレベーター
  • 駐輪場
  • オートロック
設備(その他)
    -
駐車場/月額
空無/-
土地権利
所有権
国土法届出
不要
用途地域
準住居
戸数
49戸 / -
管理形態
管理会社に全部委託
管理員の勤務形態
日勤
管理会社
大和ライフネクスト
取引態様
仲介
引渡し
即時

コスモ上尾パークサイドアヴェニューで募集中の物件

  1. 6階

    27.90坪 (92.24㎡)

    1,780万円(63.8万円/坪)

周辺施設

  • あいとく歯科の画像

    歯科

    あいとく歯科

    125m(2分)

  • 上尾運動公園の画像

    公園

    上尾運動公園

    293m(4分)

  • 上尾市立上尾中学校の画像

    中学校

    上尾市立上尾中学校

    464m(6分)

  • イオンモール上尾店の画像

    ショッピングセンター

    イオンモール上尾店

    617m(8分)

  • SuperValue(スーパーバリュー) 上尾愛宕店の画像

    スーパー

    SuperValue(スーパーバリュー) 上尾愛宕店

    682m(9分)

  • ローソン 上尾栄町南店の画像

    コンビニエンスストア

    ローソン 上尾栄町南店

    765m(10分)

  • 上尾市立 あたご保育所の画像

    保育園

    上尾市立 あたご保育所

    978m(13分)

  • 上尾市立上尾小学校の画像

    小学校

    上尾市立上尾小学校

    1194m(15分)

  • みやした幼稚園の画像

    幼稚園

    みやした幼稚園

    1520m(19分)

  • 上尾郵便局の画像

    郵便局

    上尾郵便局

    1617m(21分)

  • 夢庵 上尾西店の画像

    和風料理

    夢庵 上尾西店

    1629m(21分)

  • 東和銀行上尾支店の画像

    銀行

    東和銀行上尾支店

    1699m(22分)

  • 上尾市役所の画像

    市役所・区役所

    上尾市役所

    1850m(24分)

  • 耳鼻咽喉科 かわた医院の画像

    耳鼻科

    耳鼻咽喉科 かわた医院

    1874m(24分)

  • 松本医院の画像

    総合病院

    松本医院

    2057m(26分)

  • わかたび皮ふ科の画像

    皮膚科

    わかたび皮ふ科

    2160m(27分)

  • 徳樹庵 上尾店の画像

    和風料理

    徳樹庵 上尾店

    2578m(33分)

  • こしの眼科クリニックの画像

    眼科

    こしの眼科クリニック

    2661m(34分)

近隣の物件

  1. 上尾市春日1丁目

    3LDK (60.00㎡)

    2,680万円

  2. 上尾市上町1丁目

    3LDK (70.02㎡)

    4,480万円

  3. 上尾市谷津2丁目

    3LDK (76.83㎡)

    3,290万円

  4. 上尾市春日2丁目

    4LDK (76.48㎡)

    2,580万円

コスモ上尾パークサイドアヴェニュー

お気軽にお問い合わせください

LINEからお問い合わせ 無料お問い合わせ

株式会社こもれびハウス

0120-788-767

9:00~20:00

(休:水曜日)