上尾市原市北 3期 新築一戸建て グレース 01

4,498万円

埼玉県上尾市原市北1丁目

埼玉新都市交通ニューシャトル「沼南」駅徒歩5分

高崎線「上尾」駅徒歩47分

埼玉新都市交通ニューシャトル「丸山」駅徒歩14分

価格
4,498万円
間取り
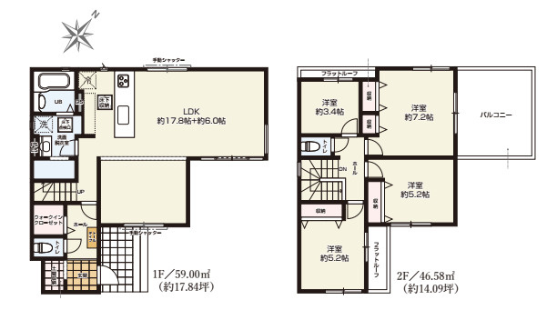
4LDK
土地面積
139.79㎡
所在地
埼玉県上尾市原市北1丁目
交通

埼玉新都市交通ニューシャトル沼南」駅 徒歩5分

高崎線上尾」駅 徒歩47分

埼玉新都市交通ニューシャトル丸山」駅 徒歩14分

建物面積
105.58㎡
築年月
2026年4月(予定)

物件の特徴

  • 室内洗濯機置場

  • TVモニタ付きインターホン

  • カウンターキッチン

  • 独立洗面台

  • 浴室乾燥機

セールスポイント

☆沼南駅まで徒歩5分☆
♪LDK23.8帖と開放感ある広々リビング♪

★内覧即日対応★
急なお問合せも歓迎・お子様連れでもご遠慮なくご相談下さい♪

★ローン審査に柔軟対応★
どの会社よりも承認率に自信がございます!
借換えやおまとめローンもご相談いただけます!

★不動産の専門家がプランニング★
【宅地建物取引士】【ローンアドバイザー】が全力サポート!

ポイント

LDK23.8帖 広々バルコニー 並列駐車2台 角地 WIC 土間収納 3面採光 床下収納 駅徒歩5分 スーパー近い 新都心交通 沼南駅 原市小学校 原市中学校

担当者のコメント

早乙女 優

☆沼南駅まで徒歩5分☆
♪LDK23.8帖と開放感ある広々リビング♪

○奥行きのある広々バルコニーです○


【~癒しと温かみのある 心地よい住まい探し をあなたに~】

埼玉エリアならお任せください♪
地元に強いからこそ、
良い物件情報・価格交渉・アフターサービスまで徹底サポートします!

━━━━━━━━━━━━━━━━━━━
【Komorebi houseの圧倒的な強み】
━━━━━━━━━━━━━━━━━━━
【戸建てご購入の方へ】
・インスペクション(建物状況調査)と同等レベルの検査が無料!
・点検後の補修依頼もその場でまとめて可能!

→ 購入後もずっと安心できるアフターフォローが好評です!

【住宅ローンの強さも自信あり!】
・提携銀行多数!お客様に最適な銀行を幅広くご紹介
・他社で否決・減額だった方の“承認実績”多数!

→ 難しいローンでも諦める前に、ぜひ一度ご相談ください!

【地域密着エリア特化のメリット】
・埼玉エリアに特化しているから地元情報と人脈が豊富!
・取引先ハウスメーカー多数 → 価格交渉にも強い!
・購入後のアフターフォローも徹底対応!

→地元に強い会社だからできる、安心のサービスです!

━━━━━━━━━━━━━━━━━━━
【サポート体制も万全です!】
━━━━━━━━━━━━━━━━━━━

弊社には以下の専門家が在籍しています。
・宅地建物取引士
・大手ハウスメーカー経験者
・マンションリノベーションアドバイザー
・住宅ローンアドバイザー
・不動産歴の長いベテランスタッフ

不動産購入の不安や疑問は、すべて私たちにお任せください!

基本情報

販売戸数
1戸
総戸数
1戸
間取り / 詳細
4LDK
LDK 23.8帖 1室/洋室 7.2帖 1室/洋室 5.2帖 2室/洋室 3.4帖 1室
向き
北東
建物面積(坪数)
105.58㎡(31.93坪)
土地面積(坪数)
139.79㎡(42.28坪)
建ぺい率 /
容積率
60%/200%
築年月
2026年4月(予定)
駐車場 /
月額料金
有(2台) 0円
土地権利
所有権
土地
(敷金 / 保証金)
- / -
建物構造
木造 / 2階建
傾斜地部分面積
-
路地状敷地
-
私道負担面積
-
セットバック
高圧線下面積
-
施工会社
-
用途地域
第二種住居
地目 / 地勢
宅地 / -
接道状況
角地(北西 公道 4.0m)(北東 公道 16.0m)
国土法届出要否
不要
都市計画
市街化区域
総区画数 /
販売区画数
1区画/1区画
現況
未完成
その他
法令上の制限
景観法
取引態様
仲介
引渡し
2026年4月
取引条件の
有効期限
2026年03月16日

設備条件

設備条件
  • 陽当り良好 / 閑静な住宅地 / 室内洗濯機置場 / フローリング / バルコニー / 都市ガス / 公営水道 / 公共下水 / 24時間換気システム / 電気有 / 駐輪場 / バイク置場あり / 駐車2台可 / ガスコンロ / コンロ2口以上 / 食器洗い乾燥機 / システムキッチン / コンロ3口 / オープンキッチン / カウンターキッチン / 追焚機能浴室 / 浴室乾燥機 / トイレ2ヶ所 / 浴室1坪以上 / 独立洗面台 / 床下収納 / ウォークインクロゼット / ウォークインシューズクロゼット / 収納豊富 / TVモニタ付インターホン / 複層ガラス / ディンプルキー / 24時間ゴミ出し可
設備(その他)
    -

その他

物件番号
100815395
管理コード
-
建築確認番号
第25UDI1W建09488号
情報更新日
2026年03月02日
次回更新予定日
2026年03月16日
取扱会社
  • 株式会社こもれびハウス
  • 埼玉県上尾市泉台2丁目6番9号 泉台ハイツ 1B
  • TEL:0120-788-767
  • 埼玉県知事 (1) 第25102号
  • 埼玉県宅地建物取引業協会
備考
【Komorebi house】期間限定キャンペーン!
~ご成約で【選べる家電プレゼント♪】~
※対象物件はスタッフまで!
人気のものから無くなりますのでお早めに!

【突然のお電話・お問い合わせ、大歓迎!】
今すぐ【0120-788-767】へ!

さらに、、、
【ご来店でAmazonギフト券3,000円分プレゼント!】
「ちょっと相談だけ」でもOKです!

==============================

【ご内覧について】
~写真だけじゃ分からない“空気感”を現地で体感してください!~

・当日のご内覧大歓迎!(土日祝ももちろんOK)
・資料だけほしい方もお気軽に♪
・ネットには載せられない
【未公開物件】や【新規公開前物件】もまとめてご紹介できます!

==============================

【資金計画・住宅ローンのご相談】

「いくら借りられる?」
「初期費用0円って本当にできる?」
「銀行、どこに出すのが一番通りやすい?」

全部お任せください!
最適な資金シミュレーションから、
事前審査~本申込までフルサポート!

多数の銀行と取引があるため、お客様にベストなプランをご提案!

==============================

【Komorebi houseとは?】

「不動産ってちょっと怖い…相談しづらい」
そんなイメージをゼロにするために立ち上げた会社です。

・初めての家探し
・ネットの情報だけでは判断しづらい…
・とりあえず話を聞きたい

そんな方、大歓迎です!

==============================

【プロフェッショナル集団が徹底サポート】

・宅地建物取引士
・大手ハウスメーカー出身者
・リノベーションアドバイザー
・住宅ローンアドバイザー
・ベテラン不動産スタッフ

頼れる専門スタッフがチームでご対応します!
※強引な営業は一切いたしません。ご安心ください。

==============================

【お問い合わせ・ご相談、お気軽にどうぞ!】
「ちょっと聞きたい」
「とりあえず見てみたい」
そんな軽い気持ちでOKです。

皆さまからのご連絡を心よりお待ちしております!

周辺施設

  • 野本歯科医院の画像

    歯科

    野本歯科医院

    338m(5分)

  • セブンイレブン 上尾原市バイパス店の画像

    コンビニエンスストア

    セブンイレブン 上尾原市バイパス店

    410m(6分)

  • いなげや 上尾沼南駅前店の画像

    スーパー

    いなげや 上尾沼南駅前店

    510m(7分)

  • 妙厳寺幼稚園の画像

    幼稚園

    妙厳寺幼稚園

    635m(8分)

  • 原市郵便局の画像

    郵便局

    原市郵便局

    654m(9分)

  • 上尾市立原市小学校の画像

    小学校

    上尾市立原市小学校

    840m(11分)

  • 上尾市立原市中学校の画像

    中学校

    上尾市立原市中学校

    1130m(15分)

  • こしの眼科クリニックの画像

    眼科

    こしの眼科クリニック

    1217m(16分)

  • 天然温泉花咲の湯の画像

    温泉

    天然温泉花咲の湯

    1617m(21分)

  • 柿沢医院の画像

    総合病院

    柿沢医院

    1816m(23分)

  • 肉の万世上尾店の画像

    ファミリーレストラン

    肉の万世上尾店

    1941m(25分)

  • すき家 16号上尾瓦葺店の画像

    その他

    すき家 16号上尾瓦葺店

    2067m(26分)

  • かんだ動物病院の画像

    動物病院

    かんだ動物病院

    2252m(29分)

  • かつや伊奈店の画像

    ファミリーレストラン

    かつや伊奈店

    2331m(30分)

  • イオンモール上尾店の画像

    ショッピングセンター

    イオンモール上尾店

    2769m(35分)

  • JAさいたま上尾支店の画像

    銀行

    JAさいたま上尾支店

    3195m(40分)

支払いシミュレーション

月々の支払額
購入希望物件価格
万円
頭金
万円
金利
%
返済額(ボーナス1回分)
万円
返済期間

※ボーナスは自動で年2回分で計算されます。

近隣の物件

  1. 上尾市大谷本郷 9期 新築一戸建て グラファーレ 06

    上尾市大字大谷本郷

    4LDK (99.36㎡)

    3,099万円

  2. 上尾市大谷本郷 9期 新築一戸建て グラファーレ 04

    上尾市大字大谷本郷

    4LDK (97.70㎡)

    2,799万円

  3. 上尾市大谷本郷 9期 新築一戸建て グラファーレ 05

    上尾市大字大谷本郷

    4LDK (98.53㎡)

    2,899万円

  4. 上尾市大谷本郷 9期 新築一戸建て グラファーレ 03

    上尾市大字大谷本郷

    4LDK (97.70㎡)

    3,499万円

よく見られている物件

  1. 鴻巣市箕田 中古一戸建て

    鴻巣市箕田

    5DK (57.48㎡)

    430万円

  2. 桶川市北2丁目 中古一戸建て

    桶川市北2丁目

    4LDK+S(納戸) (124.84㎡)

    1,980万円

  3. 北本市本町4丁目 中古一戸建て

    北本市本町4丁目

    4LDK (88.59㎡)

    1,980万円

  4. 上尾市畔吉 中古一戸建

    上尾市大字畔吉

    4LDK (125.22㎡)

    1,480万円

上尾市原市北 3期 新築一戸建て グレース 01

上尾市原市北 3期 新築一戸建て グレース 01

4,498万円

-

4LDK(105.58㎡)

お気軽にお問い合わせください

LINEからお問い合わせ 無料お問い合わせ

株式会社こもれびハウス

0120-788-767

9:00~20:00

(休:水曜日)