桶川市坂田 10期 新築一戸建て ブルーミングガーデン 01
11月3日 値下げ
3,598万円
高崎線「桶川」駅徒歩38分
埼玉新都市交通ニューシャトル「内宿」駅徒歩41分
高崎線「北本」駅徒歩60分
【外観】10/31 撮影
- 価格
- 3,598万円
- 間取り
- 3LDK
- 土地面積
- 165.30㎡
- 建物面積
- 104.28㎡
- 築年月
- 2025年10月(新築)
-
室内洗濯機置場
-
TVモニタ付きインターホン
-
カウンターキッチン
-
独立洗面台
-
浴室乾燥機

外観
リビング
キッチン
風呂
寝室- 販売戸数
- 1戸
- 総戸数
- 1戸
- 間取り / 詳細
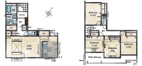
- 3LDK
LDK 19.0帖 1室/洋室 10.2帖 1室/洋室 6.2帖 1室/洋室 5.2帖 1室 - 向き
- 南東
- 建物面積(坪数)
- 104.28㎡(31.54坪)
- 土地面積(坪数)
- 165.30㎡(50.00坪)
- 建ぺい率 /
容積率 - 50%/80%
- 築年月
- 2025年10月(新築)
- 駐車場 /
月額料金 - 有(2台) 0円
- 土地権利
- 所有権
- 土地
(敷金 / 保証金) - - / -
- 建物構造
- 木造 / 2階建
- 傾斜地部分面積
- -
- 路地状敷地
- -
- 私道負担面積
- -
- セットバック
- 無
- 高圧線下面積
- -
- 施工会社
- -
- 用途地域
- 第一種低層住居専用
- 地目 / 地勢
- 宅地 / -
- 接道状況
- 一方(北西 公道 6.2m)
- 国土法届出要否
- 不要
- 都市計画
- 市街化区域
- 総区画数 /
販売区画数 - 1区画/1区画
- 現況
- 完成済み
- その他
法令上の制限 - 景観法
- 取引態様
- 仲介
- 引渡し
- 即時
- 取引条件の
有効期限 - 2025年11月25日
- 設備条件
-
- 陽当り良好 / 閑静な住宅地 / 建設住宅性能評価書付 / 眺望良好 / カードキー / 室内洗濯機置場 / フローリング / バルコニー / 公営水道 / 公共下水 / 24時間換気システム / 電気有 / 駐輪場 / バイク置場あり / 駐車2台可 / 耐震構造 / 食器洗い乾燥機 / システムキッチン / カウンターキッチン / 追焚機能浴室 / 浴室乾燥機 / 温水洗浄便座 / トイレ2ヶ所 / 浴室1坪以上 / 独立洗面台 / 床下収納 / 収納豊富 / TVモニタ付インターホン / 複層ガラス / ディンプルキー / 24時間ゴミ出し可
- 設備(その他)
-
-
-
- 物件番号
- 98131814
- 管理コード
- -
- 建築確認番号
- 第25UDI1建03432号
- 情報更新日
- 2025年11月11日
- 次回更新予定日
- 2025年11月25日
- 備考
- 【Komorebi house】ご成約家電プレゼントキャンペーン♪
~対象物件はスタッフまでご確認ください~
突然のご連絡大歓迎です!!
お問い合わせは「0120-788-767」まで!
お問合せからご来店いただいた方にAmazonギフト3,000円分プレゼント♪
ーーーーーーーーーーーーーーーーーーー
●ご内覧について●
☆実際に現地でご覧いただくことで、お写真では分からなかった設備や周辺環境も是非ご覧ください☆
・当日(土日祝日OK)でのご内覧希望も大歓迎です♪
・また、資料がほしいなどでもお気軽にお問合せくださいませ!
・ネット掲載不可の未公開物件、新規公開予定の物件も併せて資料をご用意致します。
●資金計画・住宅ローンのご相談●
・いくら借りられるのか? 支払いはいくらになるのか?
・初期費用0円で購入は可能なのか?
・多数の銀行で住宅ローンの審査をかけてほしい
・打合せをしながら、お客様一人一人に最適なご提案を致します!
・資金シミュレーションや最良な金融機関のご紹介、事前審査から本申し込みまでお任せください!
●【Komorebi house】について●
・初めてで、何から始めればいいか分からない。
・不動産会社はたくさんあるけど何となく入りずらい、相談しずらい・・
・そんな業界のイメージを変えたくて立ち上げました!
ーーーーーーーーーーーーーーーーーーー
弊社では、【宅地建物取引士】・【大手ハウスメーカー経験者】・【マンションリノベーションアドバイザー】・【住宅ローンアドバイザー】・【不動産歴の長い経験豊富なスタッフ】がサポートさせていただきます!
※強引な営業は致しません!
ご連絡ご相談お待ちしております♪ -
銀行
JAさいたま加納支店
514m(7分)
-
コンビニエンスストア
セブンイレブン 桶川高校前店
520m(7分)
-
中学校
桶川市立加納中学校
600m(8分)
-
公園
桶川市子ども公園
627m(8分)
-
郵便局
桶川坂田郵便局
732m(10分)
-
幼稚園
しろがね幼稚園
760m(10分)
-
ドラッグストア
ドラッグストア セキ 坂田西店
830m(11分)
-
小学校
桶川市立加納小学校
850m(11分)
-
ショッピングセンター
FRESPO(フレスポ)桶川
930m(12分)
-
スーパー
カスミ フードスクエアフレスポ桶川坂田店(フレスポ桶川内)
930m(12分)
-
歯科
アズ歯科 桶川院
972m(13分)
-
動物病院
ナカムラペット病院
1169m(15分)
-
小児科
鈴木医院
1565m(20分)
-
ファミリーレストラン
カレーハウスCoCo壱番屋 桶川国道17号店
1612m(21分)
-
総合病院
埼玉県央病院
1687m(22分)
-
耳鼻科
おかべ耳鼻咽喉科医院
1911m(24分)
-
ファーストフード
吉野家 桶川北店
2007m(26分)
-
ラーメン
田所商店桶川店
2189m(28分)
-
皮膚科
高橋皮膚科医院
2364m(30分)
-
市役所・区役所
桶川市役所
2428m(31分)
- 月々の支払額
- 9.6円
- 購入希望物件価格
-
万円
- 頭金
-
万円
- 金利
-
%
- 返済額(ボーナス1回分)
-
万円
- 返済期間
-
年
物件の特徴
セールスポイント
☆南面バルコニーで陽当たり良好☆
♪LDK19帖と広々♪
★当社はどの会社よりも住宅ローン審査に柔軟対応し、承認率も高水準!
借換えやおまとめローンもご相談いただけます!
★地域密着で多数のハウスメーカーと取引があるため、価格交渉も安心してお任せください!
★埼玉県全域に特化し、【宅地建物取引士】【住宅ローンアドバイザー】がお住まい探しを全力サポートいたします!
ポイント
床下収納 前道6m以上 24時間ゴミ出し可 ワイドバルコニー 寝室10帖以上 LDK19帖 収納豊富 並列駐車2台 パントリー 南面バルコニー 庭 南庭 JR高崎線 桶川駅 加納小学校 加納中学校
担当者のコメント
パノラマ画像
基本情報
設備条件
その他
周辺施設
支払いシミュレーション
※ボーナスは自動で年2回分で計算されます。
近隣の物件
桶川市坂田 10期 新築一戸建て ブルーミングガーデン 01
3,598万円
-
3LDK(104.28㎡)
中山 大輔
♪LDK19帖と広々♪
○将来家族構成に合わせて4LDKに間取り変更可能!○
【地域密着エリア特化の不動産】
~癒しと温かみのある住まい探しを~
弊社は、埼玉県の新築戸建て、中古戸建て、マンション、土地などの取り扱いに特化しております!
【Komorebi houseの強み】
☆新築・中古戸建て購入の方へ☆
●毎年、提携業者(第三者機関)にて定期点検が永年無料!
●建物状況調査(インスペクション)と同等検査が無料で行えます!
●第三者の視点で既存住宅に劣化や不具合が生じていないか検査を行います!
●定期点検後の補修もその場でまとめて依頼可能!
☆レスポンスを大切にします☆
●内覧の即日対応!スタッフが駆け付けます!
●諸費用のご相談!ローン計画書もすぐお送りいたします!
●その他ご不明点ご質問に即日回答させていただきます!
☆住宅ローンに関して☆
●提携銀行多数、たくさんの銀行さんをご紹介できます!
●他社で否決・減額になってしまった方も承認実績あり!
●シングルマザーの方、外国籍の方、個信に不安のある方なども柔軟にご対応させていただきます!
☆地域密着エリア特化の不動産屋さん☆
●埼玉エリアに特化しておりますので、取引先ハウスメーカー様も多数あり!
●価格交渉も通りやすいので、是非お任せください!
●購入された後もアフターフォローもしっかりとさせていただきます!
どんなことでもご相談ください!
弊社では、【宅地建物取引士】・【大手ハウスメーカー経験者】・【マンションリノベーションアドバイザー】・【住宅ローンアドバイザー】・【不動産歴の長い経験豊富なスタッフ】がサポートさせていただきます!