鴻巣市筑波 第5 新築一戸建て クレイドルガーデン 05

2,880万円

埼玉県鴻巣市筑波2丁目

高崎線「吹上」駅徒歩16分

高崎線「北鴻巣」駅徒歩35分

高崎線「行田」駅徒歩44分

価格
2,880万円
間取り/建物面積
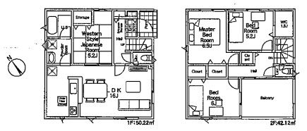
4LDK/92.34㎡
所在地
埼玉県鴻巣市筑波2丁目
築年
2025年12月(予定)
駐車
有(2台)
交通

高崎線吹上」駅 徒歩16分

高崎線北鴻巣」駅 徒歩35分

高崎線行田」駅 徒歩44分

鴻巣市筑波 第5 新築一戸建て クレイドルガーデン 05の基本情報

物件名
鴻巣市筑波 第5 新築一戸建て クレイドルガーデン 05
価格
2,880万円
建物面積
92.34㎡
土地面積
51.86坪(171.46㎡)
築年月
2025年12月(予定)
総戸数
-
所在地
埼玉県鴻巣市筑波2丁目
交通

高崎線吹上」駅 徒歩16分

高崎線北鴻巣」駅 徒歩35分

高崎線行田」駅 徒歩44分

鴻巣市筑波 第5 新築一戸建て クレイドルガーデン 05の詳細情報

設備条件
  • 閑静な住宅地
  • 建設住宅性能評価書付
  • 駐輪場
  • バイク置場あり
  • 駐車2台可
  • 耐震構造
  • 防犯カメラ
  • 24時間ゴミ出し可
設備(その他)
    -
駐車場/月額
有(2台)/0円
土地権利
所有権
国土法届出
不要
用途地域
第一種住居
取引態様
仲介
引渡し
2025年12月

鴻巣市筑波 第5 新築一戸建て クレイドルガーデン 05で募集中の物件

  1. 27.93坪 (92.34㎡)

    2,880万円(103.11万円/坪)

周辺施設

  • セブンイレブン 鴻巣下忍SS店の画像

    コンビニエンスストア

    セブンイレブン 鴻巣下忍SS店

    204m(3分)

  • 平野産婦人科医院の画像

    産婦人科

    平野産婦人科医院

    346m(5分)

  • 吹上郵便局の画像

    郵便局

    吹上郵便局

    354m(5分)

  • 下忍第1公園の画像

    公園

    下忍第1公園

    396m(5分)

  • やよい軒 吹上鎌塚店の画像

    和風料理

    やよい軒 吹上鎌塚店

    575m(8分)

  • JAさいたま吹上支店の画像

    銀行

    JAさいたま吹上支店

    620m(8分)

  • 鴻巣市立吹上中学校の画像

    中学校

    鴻巣市立吹上中学校

    630m(8分)

  • 鴻巣市立下忍小学校の画像

    小学校

    鴻巣市立下忍小学校

    634m(8分)

  • スギドラッグ 吹上富士見店の画像

    ドラッグストア

    スギドラッグ 吹上富士見店

    732m(10分)

  • 鳥羽歯科医院の画像

    歯科

    鳥羽歯科医院

    817m(11分)

  • FUJI MALL吹上の画像

    ショッピングセンター

    FUJI MALL吹上

    925m(12分)

  • 一富士焼肉飯店の画像

    焼肉

    一富士焼肉飯店

    945m(12分)

  • 中央たんぽぽ保育園の画像

    保育園

    中央たんぽぽ保育園

    1138m(15分)

  • 吹上中央幼稚園の画像

    幼稚園

    吹上中央幼稚園

    1139m(15分)

  • 昭和クリニックの画像

    総合病院

    昭和クリニック

    1214m(16分)

  • 平田眼科の画像

    眼科

    平田眼科

    1274m(16分)

  • 医療法人田辺耳鼻咽喉科医院の画像

    耳鼻科

    医療法人田辺耳鼻咽喉科医院

    1445m(19分)

  • 多島小児科医院の画像

    小児科

    多島小児科医院

    1945m(25分)

  • 鴻巣市役所の画像

    市役所・区役所

    鴻巣市役所

    7412m(93分)

  • FOOD OFFストッカー吹上店の画像

    スーパー

    FOOD OFFストッカー吹上店

    10088m(127分)

近隣の物件

  1. 鴻巣市北新宿

    3LDK (98.82㎡)

    2,680万円

  2. 鴻巣市東3丁目

    4LDK (108.47㎡)

    3,490万円

  3. 鴻巣市稲荷町

    4LDK (9150.00㎡)

    1,199万円

  4. 鴻巣市東3丁目

    4LDK (110.96㎡)

    3,690万円

鴻巣市筑波 第5 新築一戸建て クレイドルガーデン 05

お気軽にお問い合わせください

LINEからお問い合わせ 無料お問い合わせ

株式会社こもれびハウス

0120-788-767

9:00~20:00

(休:水曜日)