北本市中丸2丁目 中古一戸建て

1,180万円

埼玉県北本市中丸2丁目

高崎線「北本」駅徒歩21分

高崎線「桶川」駅徒歩47分

埼玉新都市交通ニューシャトル「内宿」駅徒歩82分

価格
1,180万円
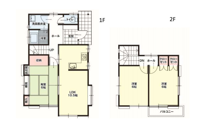
間取り/建物面積
5DK/105.16㎡
所在地
埼玉県北本市中丸2丁目
築年
1989年9月(築36年)
駐車
有(1台)(屋根有)
交通

高崎線北本」駅 徒歩21分

高崎線桶川」駅 徒歩47分

埼玉新都市交通ニューシャトル内宿」駅 徒歩82分

北本市中丸2丁目 中古一戸建ての基本情報

物件名
北本市中丸2丁目 中古一戸建て
価格
1,180万円
建物面積
105.16㎡
土地面積
40.09坪(132.56㎡)
築年月
1989年9月(築36年)
総戸数
1戸
所在地
埼玉県北本市中丸2丁目
交通

高崎線北本」駅 徒歩21分

高崎線桶川」駅 徒歩47分

埼玉新都市交通ニューシャトル内宿」駅 徒歩82分

北本市中丸2丁目 中古一戸建ての詳細情報

設備条件
  • 閑静な住宅地
  • 駐輪場
  • バイク置場あり
設備(その他)
    -
駐車場/月額
有(1台)(屋根有)/0円
土地権利
所有権
国土法届出
不要
用途地域
第一種低層住居専用
取引態様
仲介
引渡し
相談

北本市中丸2丁目 中古一戸建てで募集中の物件

  1. 31.81坪 (105.16㎡)

    1,180万円(29.43万円/坪)

周辺施設

  • ローソン 北本中丸五丁目店の画像

    コンビニエンスストア

    ローソン 北本中丸五丁目店

    325m(5分)

  • ウエルシア北本中丸店の画像

    ドラッグストア

    ウエルシア北本中丸店

    416m(6分)

  • かつき動物病院の画像

    動物病院

    かつき動物病院

    424m(6分)

  • 岡野歯科医院の画像

    歯科

    岡野歯科医院

    551m(7分)

  • 北本中央緑地の画像

    公園

    北本中央緑地

    555m(7分)

  • バーミヤン 北本店の画像

    ファミリーレストラン

    バーミヤン 北本店

    655m(9分)

  • 北本市立東小学校の画像

    小学校

    北本市立東小学校

    699m(9分)

  • 北本二ッ家郵便局の画像

    郵便局

    北本二ッ家郵便局

    777m(10分)

  • 山田医院の画像

    総合病院

    山田医院

    878m(11分)

  • コープみらい コープ北本店の画像

    スーパー

    コープみらい コープ北本店

    1030m(13分)

  • 高橋皮膚科医院の画像

    皮膚科

    高橋皮膚科医院

    1128m(15分)

  • 北本みなみ幼稚園の画像

    幼稚園

    北本みなみ幼稚園

    1130m(15分)

  • ベルク 北本二ツ家店の画像

    スーパー

    ベルク 北本二ツ家店

    1200m(15分)

  • 東和銀行北本支店の画像

    銀行

    東和銀行北本支店

    1532m(20分)

  • 吉田医院の画像

    産婦人科

    吉田医院

    1628m(21分)

  • 北本市立東中学校の画像

    中学校

    北本市立東中学校

    1700m(22分)

  • 井上眼科医院の画像

    眼科

    井上眼科医院

    1725m(22分)

  • 鈴木医院の画像

    小児科

    鈴木医院

    1757m(22分)

  • いなぎentクリニックの画像

    耳鼻科

    いなぎentクリニック

    1778m(23分)

近隣の物件

  1. 北本市宮内1丁目

    3SLDK (108.57㎡)

    3,290万円

  2. 北本市宮内1丁目

    3LDK (97.29㎡)

    3,280万円

  3. 北本市大字下石戸下

    3LDK (72.86㎡)

    1,499万円

  4. 北本市二ツ家4丁目

    3LDK (94.19㎡)

    2,890万円

よく見られている物件

  1. 鴻巣市箕田

    5DK (57.48㎡)

    430万円

  2. 桶川市北2丁目

    4LDK+S(納戸) (124.84㎡)

    1,980万円

  3. 北本市本町4丁目

    4LDK (88.59㎡)

    1,980万円

  4. 上尾市大字畔吉

    4LDK (125.22㎡)

    1,480万円

北本市中丸2丁目 中古一戸建て

お気軽にお問い合わせください

LINEからお問い合わせ 無料お問い合わせ

株式会社こもれびハウス

0120-788-767

9:00~20:00

(休:水曜日)