4件(会員物件 1件)
-
4,180万円
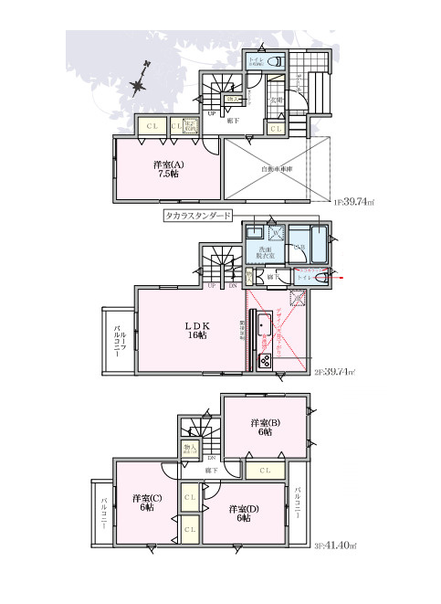
120.88㎡ (4LDK) /予定
- 都市ガス
- 陽当り良好
- 収納豊富
- システムキッチン
- 食器洗い乾燥機
- 浴室乾燥機
新築
☆「宮原」駅徒歩8分☆
♪プライバシーが守られる2階リビングです♪
〇全居室6帖以上なので広々とした空間を感じることができます〇
【~癒しと温かみのある 心地よい住まい探し をあなたに~】
埼玉エリアならお任せください♪
地元に強いからこそ、良い物件情報・価格交渉・アフターサービスまで徹底サポートします!
━━━━━━━━━━━━━━━━━━━
【Komorebi houseの圧倒的な強み】
━━━━━━━━━━━━━━━━━━━
【戸建てご購入の方へ】
・インスペクション(建物状況調査)と同等レベルの検査が無料!
・点検後の補修依頼もその場でまとめて可能!
→ 購入後もずっと安心できるアフターフォローが好評です!
【住宅ローンの強さも自信あり!】
・提携銀行多数!お客様に最適な銀行を幅広くご紹介
・他社で否決・減額だった方の“承認実績”多数!
→ 難しいローンでも諦める前に、ぜひ一度ご相談ください!
【地域密着エリア特化のメリット】
・埼玉エリアに特化しているから地元情報と人脈が豊富!
・取引先ハウスメーカー多数 → 価格交渉にも強い!
・購入後のアフターフォローも徹底対応!
→地元に強い会社だからできる、安心のサービスです!
━━━━━━━━━━━━━━━━━━━
【サポート体制も万全です!】
━━━━━━━━━━━━━━━━━━━
弊社には以下の専門家が在籍しています。
・宅地建物取引士
・大手ハウスメーカー経験者
・マンションリノベーションアドバイザー
・住宅ローンアドバイザー
・不動産歴の長いベテランスタッフ
不動産購入の不安や疑問は、すべて私たちにお任せください! -
2,600万円
2月8日 値下げ
92.74㎡ (4LDK) /築13年
- 駐車2台可
- 都市ガス
- 陽当り良好
- 収納豊富
- システムキッチン
- 浴室乾燥機
〇室内綺麗にお使いです〇
☆お庭があり家庭菜園も楽しめます☆
♪閑静な住宅街、陽当り良好♪
【地域密着エリア特化の不動産】
~癒しと温かみのある住まい探しを~
弊社は、埼玉県の新築戸建て、中古戸建て、マンション、土地などの取り扱いに特化しております!
【Komorebi houseの強み】
☆新築・中古戸建て購入の方へ☆
●毎年、提携業者(第三者機関)にて定期点検が永年無料!
●建物状況調査(インスペクション)と同等検査が無料で行えます!
●第三者の視点で既存住宅に劣化や不具合が生じていないか検査を行います!
●定期点検後の補修もその場でまとめて依頼可能!
☆レスポンスを大切にします☆
●内覧の即日対応!スタッフが駆け付けます!
●諸費用のご相談!ローン計画書もすぐお送りいたします!
●その他ご不明点ご質問に即日回答させていただきます!
☆住宅ローンに関して☆
●提携銀行多数、たくさんの銀行さんをご紹介できます!
●他社で否決・減額になってしまった方も承認実績あり!
●シングルマザーの方、外国籍の方、個信に不安のある方なども柔軟にご対応させていただきます!
☆地域密着エリア特化の不動産屋さん☆
●埼玉エリアに特化しておりますので、取引先ハウスメーカー様も多数あり!
●価格交渉も通りやすいので、是非お任せください!
●購入された後もアフターフォローもしっかりとさせていただきます!
どんなことでもご相談ください!
弊社では、【宅地建物取引士】・【大手ハウスメーカー経験者】・【マンションリノベーションアドバイザー】・【住宅ローンアドバイザー】・【不動産歴の長い経験豊富なスタッフ】がサポートさせていただきます! -
会員限定
☆「宮原」駅徒歩9分☆
♪ワイドバルコニー+サンルーム付きで暖かい光が差し込みます♪
〇ペットと一緒に住めます!〇
【~癒しと温かみのある 心地よい住まい探し をあなたに~】
埼玉エリアならお任せください♪
地元に強いからこそ、
良い物件情報・価格交渉・アフターサービスまで徹底サポートします!
━━━━━━━━━━━━━━━━━━━
【Komorebi houseの圧倒的な強み】
━━━━━━━━━━━━━━━━━━━
【戸建てご購入の方へ】
・インスペクション(建物状況調査)と同等レベルの検査が無料!
・点検後の補修依頼もその場でまとめて可能!
→ 購入後もずっと安心できるアフターフォローが好評です!
【住宅ローンの強さも自信あり!】
・提携銀行多数!お客様に最適な銀行を幅広くご紹介
・他社で否決・減額だった方の“承認実績”多数!
→ 難しいローンでも諦める前に、ぜひ一度ご相談ください!
【地域密着エリア特化のメリット】
・埼玉エリアに特化しているから地元情報と人脈が豊富!
・取引先ハウスメーカー多数 → 価格交渉にも強い!
・購入後のアフターフォローも徹底対応!
→地元に強い会社だからできる、安心のサービスです!
━━━━━━━━━━━━━━━━━━━
【サポート体制も万全です!】
━━━━━━━━━━━━━━━━━━━
弊社には以下の専門家が在籍しています。
・宅地建物取引士
・大手ハウスメーカー経験者
・マンションリノベーションアドバイザー
・住宅ローンアドバイザー
・不動産歴の長いベテランスタッフ
不動産購入の不安や疑問は、すべて私たちにお任せください!