桶川市北2丁目 中古一戸建て

1,980万円

埼玉県桶川市2丁目

高崎線「桶川」駅徒歩18分

高崎線「北上尾」駅徒歩41分

埼玉新都市交通ニューシャトル「内宿」駅徒歩52分

価格
1,980万円
間取り/建物面積
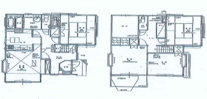
4LDK+S(納戸)/124.84㎡
所在地
埼玉県桶川市2丁目
築年
1999年1月(築27年)
駐車
有(1台)
交通

高崎線桶川」駅 徒歩18分

高崎線北上尾」駅 徒歩41分

埼玉新都市交通ニューシャトル内宿」駅 徒歩52分

桶川市北2丁目 中古一戸建ての基本情報

物件名
桶川市北2丁目 中古一戸建て
価格
1,980万円
建物面積
124.84㎡
土地面積
39.14坪(129.42㎡)
築年月
1999年1月(築27年)
総戸数
1戸
所在地
埼玉県桶川市2丁目
交通

高崎線桶川」駅 徒歩18分

高崎線北上尾」駅 徒歩41分

埼玉新都市交通ニューシャトル内宿」駅 徒歩52分

桶川市北2丁目 中古一戸建ての詳細情報

設備条件
  • 閑静な住宅地
設備(その他)
    -
駐車場/月額
有(1台)/0円
土地権利
所有権
国土法届出
不要
用途地域
第一種住居
取引態様
仲介
引渡し
相談

桶川市北2丁目 中古一戸建てで募集中の物件

  1. 37.76坪 (124.84㎡)

    1,980万円(50.59万円/坪)

周辺施設

  • 松屋 桶川店の画像

    その他

    松屋 桶川店

    321m(5分)

  • 埼玉県央病院の画像

    総合病院

    埼玉県央病院

    410m(6分)

  • ニトリ 桶川店の画像

    インテリア

    ニトリ 桶川店

    457m(6分)

  • セブンイレブン 桶川末広3丁目店の画像

    コンビニエンスストア

    セブンイレブン 桶川末広3丁目店

    473m(6分)

  • ナカムラペット病院の画像

    動物病院

    ナカムラペット病院

    476m(6分)

  • 桶川市立桶川小学校の画像

    小学校

    桶川市立桶川小学校

    522m(7分)

  • 丸亀製麺 桶川店の画像

    そば・うどん

    丸亀製麺 桶川店

    589m(8分)

  • 吉野家 桶川北店の画像

    ファーストフード

    吉野家 桶川北店

    666m(9分)

  • スーパーマルサン桶川店の画像

    スーパー

    スーパーマルサン桶川店

    679m(9分)

  • 大野整形外科の画像

    整形外科

    大野整形外科

    685m(9分)

  • 大石デンタルクリニックの画像

    歯科

    大石デンタルクリニック

    705m(9分)

  • カレーハウスCoCo壱番屋 桶川国道17号店の画像

    ファミリーレストラン

    カレーハウスCoCo壱番屋 桶川国道17号店

    710m(9分)

  • 久兵衛屋 桶川店の画像

    そば・うどん

    久兵衛屋 桶川店

    744m(10分)

  • 五月寿しの画像

    寿司

    五月寿し

    783m(10分)

  • 桶川市役所の画像

    市役所・区役所

    桶川市役所

    796m(10分)

  • 足利銀行桶川支店の画像

    銀行

    足利銀行桶川支店

    829m(11分)

  • ワッツウィズ北本二ツ家業務スーパー店の画像

    スーパー

    ワッツウィズ北本二ツ家業務スーパー店

    860m(11分)

  • 蔵田医院の画像

    内科

    蔵田医院

    941m(12分)

  • 桶川市立桶川東小学校の画像

    小学校

    桶川市立桶川東小学校

    1380m(18分)

近隣の物件

  1. 桶川市坂田東2丁目

    4LDK (94.19㎡)

    3,090万円

  2. 桶川市朝日3丁目

    3LDK (96.83㎡)

    4,498万円

  3. 桶川市鴨川1丁目

    4LDK (95.05㎡)

    4,090万円

  4. 桶川市鴨川1丁目

    3LDK (96.46㎡)

    3,798万円

よく見られている物件

  1. 鴻巣市箕田

    5DK (57.48㎡)

    430万円

  2. 桶川市北2丁目

    4LDK+S(納戸) (124.84㎡)

    1,980万円

  3. 上尾市大字畔吉

    4LDK (125.22㎡)

    1,480万円

  4. 桶川市鴨川1丁目

    3DK+S(納戸) (77.83㎡)

    1,349万円

桶川市北2丁目 中古一戸建て

お気軽にお問い合わせください

LINEからお問い合わせ 無料お問い合わせ

株式会社こもれびハウス

0120-788-767

9:00~20:00

(休:水曜日)